Get in touch

Scenic Overlook

Gallery

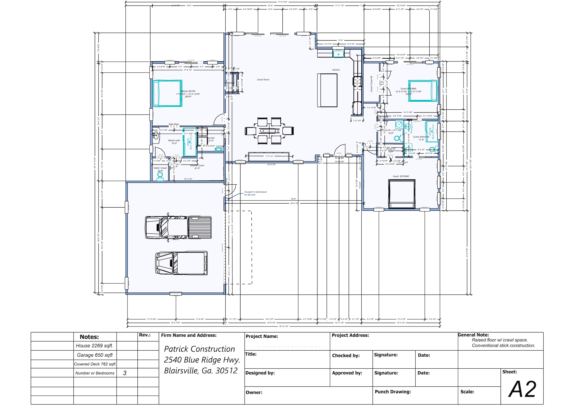
Floor plan

Plan Features:

The Scenic Overlook plan features 3 bedrooms and 2.5 baths with an attached 2-car garage, thoughtfully designed for elevated living and breathtaking views. Step inside to engineered hardwood flooring that flows through an open-concept layout, highlighting a spacious kitchen with high-quality custom cabinetry. The adjoining dining area connects seamlessly to a warm, inviting living space centered around a fireplace—perfect for gatherings and everyday comfort. Expansive outdoor living is showcased by a screened porch featuring Trex decking, stainless-steel cable railings, and durable board and batten siding, creating a low-maintenance retreat to enjoy mountain and lake views. Interior details like tongue-and-groove ceilings and custom trim work add character throughout the bedrooms and living spaces. Bathrooms offer tiled showers and modern fixtures for a clean, upscale feel. This home is designed for those who appreciate scenic beauty, craftsmanship, and effortless living.

Stories: 1
Bedrooms: 3
Bath: 2.5
Garage: Attached 2-Car
Living: Kitchen, dining area, and living room

Plan Features: Open floor plan, engineered hardwood flooring, custom cabinetry, tongue-and-groove ceilings, custom trim work, screened porch, Trex decking, stainless steel cable railings, board and batten siding, scenic views

Energy Features: Spray foam insulation, on-demand water heating system

Cookie Preferences

We use cookies to personalize your experience, and for measurement and analytics purposes. By using our website and services, you agree to our use of cookies as described in our Cookie Notice & Privacy Notice.